
BOLICHE NOS XV JOGOS PAN -AMERICANOS RIO 2007
23 a 26 de julho - Barra Bowling
|
Por
Karla Redig
16.07.07
Muito
mais do que um estacionamento!
Quem disse que estacionamento é lugar para carro? Nós também
achávamos isso até nos deparar com a necessidade de montar uma
estrutura de apoio para o Boliche. Mais uma vez o Barra Shopping
se mostrou como um verdadeiro parceiro nos cedendo a partir de
hoje (16/07) um espaço do estacionamento que fica bem em frente
à entrada do Barra Bowling.

A
entrada do Boliche que dá acesso pelo estacionamento será
utilizada como entrada de atletas, árbitros e todas as pessoas
credenciadas pelo CO-Rio.
Os
convidados terão que entrar pelo Shopping.

(ampliação)

F1
- ESCRITÓRIO DE SUPORTE PARA CREDENCIAMENTO D AINSTALAÇÃO -
VAHO
F3 - BANHEIRO - CREDENCIAMENTO
F38 - POSTO DE VERIFICAÇÃO DE MATERIAL (PVM)
F40 - POSTO DE VERIFICAÇÃO DE PEDESTRES (PVP)
F51 - SALA DE EQUIPAMENTOS (COMPUTADORES) CER
F54 - SALA DE EQUIPAMENTOS DE TELECOMUNICAÇÕES TER
F71 - ÁREA DE APOIO AO TRANSPORTE
F71.1 - BANHEIRO
F72 - SUPORTE ÀS ÁREAS DE ESTACIONAMENTO
F73 - ÁREA DE DESCANSO DOS MOTORISTAS
F86 - CHECK-IN DO STAFF
A área do estacionamento em frente ao Boliche será cercada e
com acesso restrito. Nessa área também funcionará uma área
de apoio ao transporte, posto de verificação de material e
de pedestre, sala de equipamentos de telecomunicações e área
de descanso dos motoristas.
Na
verdade, foi a área mais custosa do nosso orçamento tendo em
vista a necessidade de montar tendas e containeres para
abrigar toda essa infra-estrutura. Na estrutura inicial estava
previsto a instalação de um gerador e três tendas. O custo
estimado para essa estrutura era de R$ 55 mil sem contar a
parte de mobília que teríamos que colocar. Fizemos várias
reuniões com o
CO-RIO e o Barra
Shopping e conseguimos solucionar essa pendência com um
investimento de aproximadamente R$ 20 mil, o que facilitou
bastante o nosso trabalho. Mesmo assim, um custo bastante
expressivo para quem não tinha qualquer recurso para
trabalhar.
Hoje estamos iniciando a montagem final de todas essas áreas.
Amanhã (17/07) teremos terminado o Centro de Convenções e a
área do Estacionamento. No dia 21, entraremos no Centro Médico
para adequá-lo às necessidades dos Jogos. No madrugada de 21
para 22, estaremos preparando o boliche para os Jogos pois no
dia 22 começam os treinos oficiais.
Até lá, vamos nos preparando da melhor maneira possível. Não
só o Careca e eu, mas também os nossos atletas que estão
diariamente no Barra Bowling treinando horas e horas para
tentar nos dar a maior alegria que coroará todo esse
trabalho: uma medalha.
13.07.07
Com
Doping ou Sem Doping?
Em uma das inúmeras reuniões que tivemos para tentar
solucionar o problema das instalações extras, uma foi com a área
médica dos jogos.Descobrimos nesse momento que seria necessária
a montagem de um ambulatório médico dentro do boliche.
Argumentamos que o boliche era um esporte que trazia muito pouco
risco de alguém se machucar e essa estrutura toda seria
desnecessária. Falamos de
nossas experiências prévias em vários torneios, tanto
nacionais quanto internacionais, mas mesmo assim não
convencemos. Ouvimos novamente a famosa frase: O protocolo olímpico
exige e nós temos que cumprir essas exigências.
Lá fomos nós procurar um local dentro do boliche onde pudéssemos
colocar o posto médico. Conseguimos um local que achávamos ser
adequado: uma das salas que são utilizadas para festas, afinal
de contas, sabíamos que aquilo seria apenas decorativo, pois não
seria utilizada, só por um infortúnio muito grande e nós com
certeza não poderíamos contar com essa falta de sorte.
Quando apresentamos a sala, surgiu o novo e talvez maior
problema que tivemos que enfrentar em relação ao serviço médico.Para
atendimento rápido, essa sala está de acordo, mas onde é que
será feito o controle de doping? Para nós a resposta era
evidente, no banheiro do boliche que fica ao lado dessa sala. Óbvia
a resposta mas não tão óbvia assim. O controle de doping
requer muito mais do que um simples banheiro, requer uma área
de processamento, um banheiro com espelhos e mais algumas exigências.
E agora, como resolver isso. Como o boliche não é um esporte
olímpico, podíamos facilmente resolver essa questão
eliminando o controle de doping. Parecia a solução mais fácil.
Mas nem sempre o mais fácil é o ideal. Será que fazendo dessa
maneira, abandonando o controle de doping, não estaríamos nos
afastando cada vez mais do nosso ideal que é uma vaga para o
boliche nos Jogos Olímpicos ? Tínhamos certeza de que sim e
com isso, procuramos novamente o Barra Shopping com um novo
pedido de ajuda.
Para sorte nossa, o Barra Shopping tinha acabado de construir um
Ambulatório para atender aos seus lojistas. Esse espaço já
estava completo teria apenas que sofrer pequenas alterações e
adaptações para o controle de doping. A parte de atendimento médico
estava completa, nada mais teria que ser feito.
Junto com as arquitetas do Shopping conseguimos fazer as adaptações
necessárias. Instalações de espelho no banheiro, mais
cadeiras na área de espera, um espaço reservado para as ambulâncias
bem como um área reservada para a força de segurança.Mais uma
vez com a ajuda do Barra Shopping conseguimos atender ao
Protocolo Olímpico.
Abaixo apresentamos a planta
do Ambulatório que estará disponível para os atletas e as
delegações durante os Jogos. O
próximo artigo trará o Estacionamento do Barra Shopping, uma
área que abrigará mais do que apenas carros.

A19 - CONTROLE DE DOPING
A19.1 - RECEPÇÃO E ESPERA
A19.2 - ÁREA DE PROCESSAMENTO
A19.3 - BANHEIRO
F20 - ÁREA MÉDICA DE ATLETAS
F22 - ÁREA DE ESTACIONAMENTO PARA AMBULÂNCIAS DOS ATLETAS
F44 - ÁREA DA FORÇA DE RESPOSTA RÁPIDA DA SEGURANÇA
(CAMINHÃO DE 2 E 1/2 TONELADA)
13.07.07
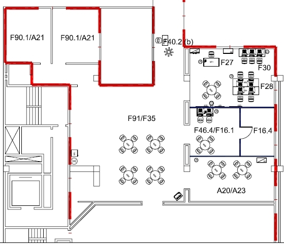
Começando pelo Centro de Convenções
A
partir do próximo dia 15 o Barra Shopping estará nos cedendo
até o final dos jogos várias de suas instalações. Essa cessão
está sendo feita sem qualquer custo para a CBBOL e além da
cessão, estão também nos ajudando com a montagem da
Infra-estrutura que será necessária nesses locais.
Escolhi
o Centro de Convenções como primeira instalação a ser
mostrada pois é a que abrigará o maior número de Áreas
Funcionais (AFs).
No Centro de Convenções teremos três salas fechadas além do
espaço de convivência comum. No espaço comum, ficarão as áreas
de descanso do staff e da segurança. Nas salas fechadas,
ficarão o escritório de cerimônia de premiação e um
depósito para a guarda dos pódios e das bandeiras, sala de
operações de segurança , da gerência local de segurança e o
escritório de gerenciamento de manutenção e instalação. Tudo
isso ficará controlado por um posto satélite de verificação
de staff e só poderá entrar nessas instalações pessoas
credenciadas.
Como explicado no artigo de ontem, cada AF nos encaminha uma
relação de tudo que será necessário nas suas instalações.
Com isso nos vimos obrigados de uma hora para outra ter que
mobiliar todas as instalações de acordo com o Protocolo Olímpico.
A seguir apresentamos o que nos foi solicitado por cada AF e a
planta de como ficará o Centro de Convenções:

CERIMÔNIAS
DE PREMIAÇÃO (A20,
A21, A23)
Depósito de Bandeiras e Pódio, Vestiários de Voluntários,
Escritório de Cerimônias:
> 8
cadeiras empilháveis com assento em plástico e pés em metal;
> 2 mesas plásticas (diâmetro de 0,95m);
> 1 armário alto com duas portas e chaves (0,90L x 0,45P x
1,80H);
> 1 lixeira.
LOGÍSTICA (F16.1, F.16.4)
Escritório de Logística, Depósito fechado de logística:
> 4 cadeiras empilháveis com assento em plástico e pés de
metal;
> 1 mesa plástica (diâmetro de 0,95m) empilhável;
> divisória.
SEGURANÇA (F27, F28, F30)
Sala do gerente local de segurança, Sala de operações de
segurança, Sala
de operação de equipamentos de Comunicação e CFTV:
> 1
armário baixo com duas portas e chaves (0,9L x 0,45P x 1,20H);
> 1 armário alto metálico com duas portas e chaves (0,9L x
0,45P x 1,980H);
> 1 quadro de cortiça (0,90L x 0,60H);
> 3 lixeiras plásticas para escritório;
> 8 cadeiras com base em metal, fixa e alcochoada;
> 1 mesa de trabalho (1,5L x 0,75P x 0,75H) em madeira com 3
gavetas;
> 2 quadros brancos (1,20L x 0,90H);
> 1 relógio de parede;
> 3 mesas grandes com tampo laminado e pés em metal (2,4L x
0,75P x 0,75H);
> 4 cadeiras empilháveis com assento em plástico e pés em
metal;
> 1 mesa plástica (diâmetro de 0,95m) empilhável.
Amanhã
falaremos do Centro Médico que por mais que já esteja montado,
necessita várias adaptações para atender ao Protocolo Olímpico,
principalmente no quesito doping.
12.07.07
Muito mais que o Barra Bowling !!!
Quando se imagina a participação
do Boliche nos Jogos Pan-americanos, logo se pensa no Barra
Bowling. Esse pensamento não está errado mas, na realidade, o
Barra Bowling é apenas uma das quatro instalações que o Boliche
utilizará durante a semana dos Jogos.
Como o Comitê Olímpico
Brasileiro almeja os Jogos Olímpicos de 2016, está sendo
exigido de todas as instalações as mesmas obrigações que são
feitas para uma Olimpíada. Ou seja, exige-se o chamado
Protocolo Olímpico. O Brasil será o primeiro país a realizar
os Jogos Pan-americanos cumprindo esse Protocolo, bem como será
realizado no Brasil os primeiros Jogos Para-pan.
Eu e o Careca fomos pegos de
surpresa com essa exigência, assim como a CBBOL e até mesmo os
proprietários do Boliche. Na reunião da ODEPA, na qual se
decidiu pela participação do Boliche, o Caco Cruz cedeu
gratuitamente o boliche para que o esporte pudesse ser incluído
nos Jogos. O que nós nunca imaginávamos, é que teria muito mais
por trás disso tudo.
Aqui vale um aparte para
explicar o que eu acredito que vários leitores desconhecem: como o boliche não é um esporte que faz parte do Programa Olímpico,
para que fosse incluído no Programa do Pan, foi assinado um
convênio entre o CO-RIO, a CBBOL e a Confederação Pan-americana de
Boliche deixando claro que o CO-RIO ou até mesmo o COB não
teriam qualquer despesa com o esporte. A única responsabilidade
deles seria: hospedagem, alimentação e transporte interno para
os árbitros e atletas. Ou
seja, todos os demais custos deveriam ser absorvidos pela CBBOL
e pela Pan-americana. Isso não foi um desafio somente do
boliche, mas sim de todos os esportes não olímpicos.
Então, de uma hora para
outra, fomos surpreendidos com a notícia que teríamos de
providenciar instalações extras para abrigar as seguintes áreas
funcionais do CO-RIO: Doping, Serviço Médico, Tecnologia, Força
Segurança Nacional, Credenciamento, Imprensa, Logística, Depósito,
Escritórios de Cerimônia de Premiação, Manutenção e uma área
de Descanso para o Staff.Além
de ter que providenciar essas instalações, estávamos também
responsáveis por mobiliar as instalações com uma lista que
nos foi apresentada pelo arquiteto do CO-RIO.
Nessa hora, pensamos (Careca e
eu)em desistir,
pois nos vimos diante de uma missão impossível, pois sabíamos
que a CBBOL não dispunha de qualquer verba para tal e o valor
apresentado pelo CO-RIO, só de móveis e tendas temporárias
era de mais de R$ 180 mil. Sabíamos, no entanto que desistir,
seria coroar de vez a incompetência do nosso esporte perante o
COB, fato esse que não poderíamos deixar acontecer.
Felizmente, ao procurarmos o Barra Shopping para tentar
viabilizar esse evento, encontramos o Henrique Wendriner
na Superintendência do Shopping que imediatamente nos estendeu
sua mão. A nossa felicidade em encontrar o Henrique nesse posto
se justifica, pois ele era o Superintendente do Amália Franco
na mesma época em que o ODESUR foi realizado naquele Shopping,
logo ele já conhecia as nossas necessidades.
O Barra Shopping se tornou o
nosso maior parceiro e aliado nessa disputa pela realização
dos Jogos. Para eles, era importante poder divulgar o
Barra Shopping como único Shopping do Brasil a sediar um evento do PAN. Felizmente, eles viram isso como uma
ótima oportunidade de marketing e abraçaram a causa Boliche
comigo e com o Careca.
Somos eternamente gratos ao
Henrique e sua equipe e, a partir de amanhã, vou apresentar dia-a-dia cada uma das instalações cedidas pelo Barra Shopping e
toda a infra-estrutura que terá nessas instalações. Assim será
possível a comunidade conhecer um pouco mais de tudo que está
por trás do boliche e como foi possível realizar esse evento
que tem um custo estimado só de montagem em aproximadamente R$ 200 mil.
Até lá ... corrente para frente
que vai dar tudo certo !!!
11.07.07
Hoje apresentaremos os doze árbitros
brasileiros que integrarão o quadro de árbitros do Boliche
durante o PAN. São eles:
1. Benê Villa – Diretor de Arbitragem
2. Titila Alvarez
3. Dayse Silva
4. Tuca Maciel
5. Asdrúbal Pedreira
6. Eduardo Issa
7. Feliph Rosa
8. Charles Robini
9. Augusto Dias
10. Raoni Dipold
11. Marcus Barrozo
12. Marco Túlio Miranda
Esses doze jogadores de boliche estarão cedendo durante seis
dias o tempo deles para ajudar o Boliche durante os jogos.
Virão ao Rio de Janeiro por conta própria e a única ajuda de
custa que terão durante esse período será a hospedagem.
No dia 21 de julho, os árbitros terão um dia inteiro de curso
e treinamento que será conduzido pelo costa-riquenho Martin
Faba Castro, que os capacitarão como árbitros internacionais.
Provavelmente, esse será o maior legado que teremos dos Jogos Pan-americanos, com a esperança de que esses doze atletas/árbitros
possam se tornar multiplicadores desse conhecimento.
Nos demais dias, 22 a 27 estarão trabalhando no Barra Bowling
em diversos turnos que se iniciam às 6:30 da manhã e com término
previsto para às 21:00 horas. Será uma rotina cansativa para
todos mas compensadora.
10.07.07
Faltam pouco mais de dez dias
para o início da participação do boliche nos Jogos Pan-americanos
e devemos confessar que já começa a dar o friozinho
na barriga.
Recebemos na sexta-feira passada (dia 6) a relação
dos atletas inscritos (clique
aqui para ver) e, no momento, a grande discussão está na participação do atleta colombiano Jaime
Andres Gomez que teve a sua inscrição "cassada"
pela Confederação Pan-Americana de Boliche por ser um atleta
profissional que disputou o PBA. No entanto, o seu nome consta
na lista de inscritos e estamos aguardando os acontecimentos
futuros.
O Rio de Janeiro já começa a
respirar o PAN. Na rua vemos várias pessoas com o que chamamos
a "moda inverno carioca", ou seja, a calça cinza com
a camisa branca ou verde com o logo dos jogos e o casaco azul. A
"Panmania" já começa a tomar conta da cidade e as
lojinhas vendendo produtos dos Jogos vivem lotadas.
No Barra Bowling o clima ainda
é de tranqüilidade. Na próxima segunda feira estaremos iniciando
as montagens do que os Organizadores chamam de "overlay".
Isso nada mais é do que as instalações temporárias. No
estacionamento em frente ao boliche já vemos o container da OI
onde ficará alojada toda infra-estrutura de tecnologia.
Estaremos utilizando o Centro de Convenções do Barra Shopping
para alojar as áreas funcionais de segurança, força nacional,
premiação, alimentação e força de trabalho. No
estacionamento do Barra Shopping, em frente ao Boliche, teremos containeres
que alojarão as áreas funcionais de credenciamento,
transporte e tecnologia. Ainda dentro do Barra Shopping
estaremos utilizando o ambulatório que abrigará as áreas
funcionais de serviço médico e doping. Devemos dizer que somos
muito gratos ao Barra Shopping por toda essa cessão de espaço
que viabilizou a realização do Boliche nos jogos.
A partir dia 20 de julho o Barra Bowling receberá os ajustes finais para os Jogos. Durante
três meses o boliche foi palco de uma reforma nas suas pistas e nas
suas instalações garantindo assim mais confortoe melhores condições de pistas. Vale aqui ressaltar,
que o custo total dessa reforma foi absorvido pelo próprio
boliche sem qualquer ajuda do COB ou da CBBOL, assim como o
custo de ficar fechado durante uma semana em Julho, mês de férias
escolares.
Bem, vou fazer o máximo para
deixar todos vocês atualizados com o boliche no PAN, mas devo
confessar que o meu tempo anda curto... No entanto, vou tentar
incluir uma nota por dia, independente do tamanho ...
Até lá e vamos torcer pelo
nosso Quarteto Fábio, Rodrigo, Roseli e Jacque !!!!
Karla Redig
|
|